04.93.01.65.84
7 boulevard Maréchal Joffre, 06310 Beaulieu-Sur-Mer

COEUR DE SAINT JEAN CAP FERRAT - Appartement 2 Pièces - Garage - Cave


< Retour

Partager sur

gallery loader
Nouveauté

Appartement 51.16 m² - 2 Pièces - Saint-Jean-Cap-Ferrat 645 000


Description de l'offre Ref 07/04/2026


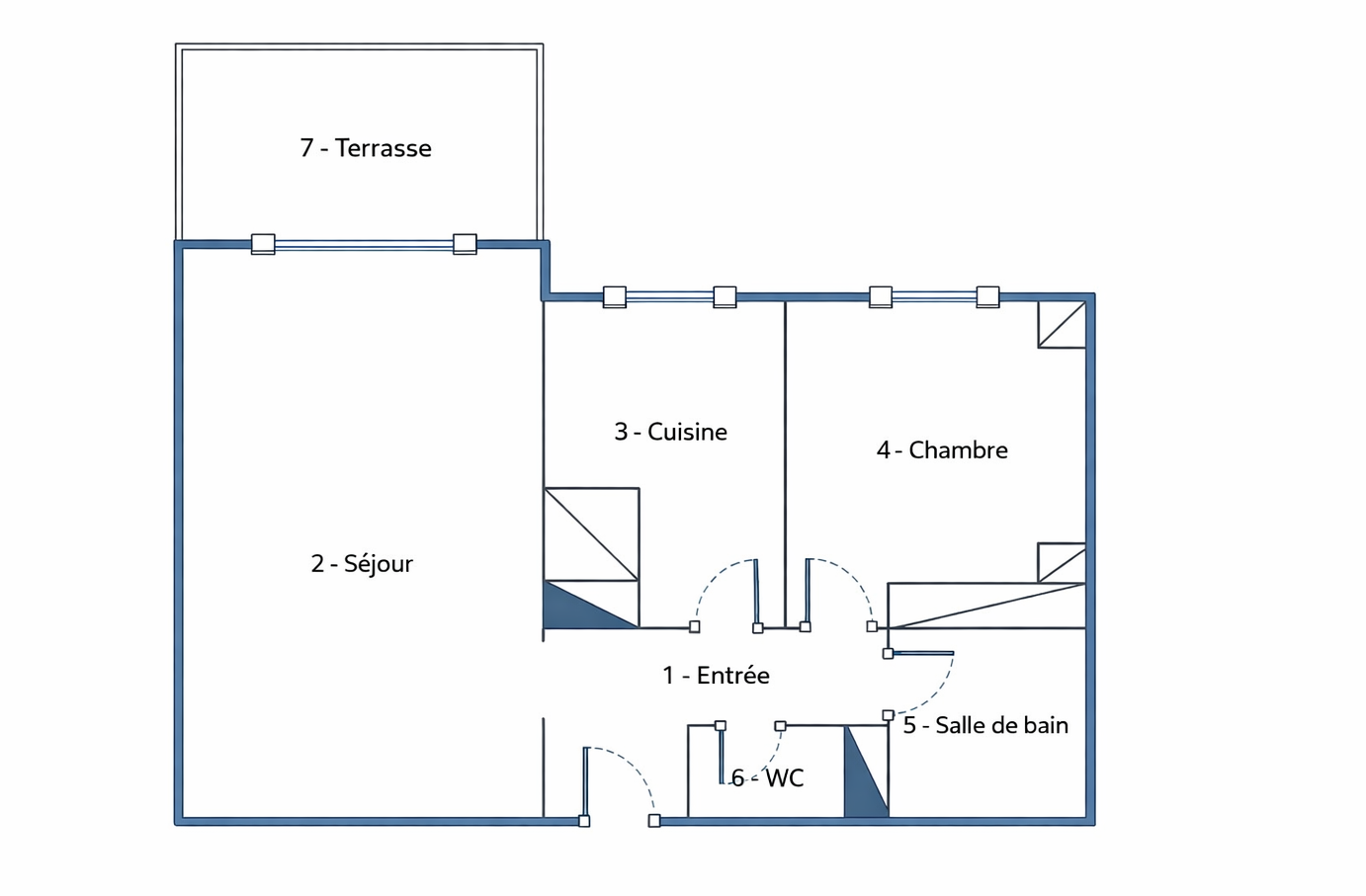
Appartement 2 pièces – Cœur de Saint-Jean-Cap-Ferrat - 51m2 - Garage - Cave. Situé en plein centre, dans un environnement recherché et au calme absolu, cet appartement de 51,16 m² se trouve au 1er étage d’une résidence bien entretenue. Il se compose d’une entrée desservant un séjour lumineux de 24 m² ouvrant sur une agréable terrasse de 6,45 m², offrant un aperçu mer ainsi qu’une vue dégagée, la cuisine est indépendante, ce qui donne une possibilité d’ouverture pour optimiser les volumes ou bien possibilité d’aménager facilement un 3 pièces selon vos besoins. L’espace nuit comprend une chambre, une salle de bain ainsi que des toilettes, Un garage fermé et sécurisé ainsi qu’une cave complètent ce bien, offrant un réel confort de stockage et de stationnement. Bien rare sur le secteur, idéal en résidence principale, pied-à-terre ou investissement patrimonial. Charge moyenne annuel: 1560€ / An Taxe Foncière: 784€ / An Prix : 645 000 € HAI Les informations sur les risques auxquels ce bien est exposé sont disponibles sur le site Géorisques : www.georisques.gouv.fr

Diagnostics de performance énergétique


DPE
DPE
DPE en cours

Descriptif du bien


Code postal 06230


Surface habitable (m²) 51,16 m²


Surface loi Carrez (m²) 51,16 m²


Nombre de chambre(s) 1


Nombre de pièces 2


Etage 1


Ascenseur OUI


Vue Vue dégager, Aperçue mer


Nb de salle de bains 1


Cuisine SEPAREE


Interphone OUI


Balcon NON


Loggia NON


Terrasse OUI


Murs mitoyens 2


Nombre de garage 1


Cave OUI


Exposition EST


Année de construction 1995


Copropriété OUI


Lot n° 109


nombre de lots 124


Prix de vente 645 000 €


Les honoraires d'agence seront intégralement à la charge du vendeur  


Cette annonce vous intéresse ?


* Champs obligatoires

* : Les informations recueillies sur ce formulaire sont enregistrées dans un fichier informatisé par La Boite Immo agissant comme Sous-traitant du traitement pour la gestion de la clientèle/prospects de l'Agence / du Réseau qui reste Responsable du Traitement de vos Données personnelles. La base légale du traitement repose sur l'intérêt légitime de l'Agence / du Réseau. Elles sont conservées jusqu'à demande de suppression et sont destinées à l'Agence / au Réseau. Conformément à la loi « informatique et libertés », vous disposez des droits d’accès, de rectification, d’effacement, d’opposition, de limitation et de portabilité de vos données. Vous pouvez retirer votre consentement à tout moment en contactant directement l’Agence / Le Réseau. Consultez le site https://cnil.fr/fr pour plus d’informations sur vos droits. Si vous estimez, après avoir contacté l'Agence / le Réseau, que vos droits « Informatique et Libertés » ne sont pas respectés, vous pouvez adresser une réclamation à la CNIL. Nous vous informons de l’existence de la liste d'opposition au démarchage téléphonique « Bloctel », sur laquelle vous pouvez vous inscrire ici : https://www.bloctel.gouv.fr Dans le cadre de la protection des Données personnelles, nous vous invitons à ne pas inscrire de Données sensibles dans le champ de saisie libre.
Ce site est protégé par reCAPTCHA, les Politiques de Confidentialité et les Conditions d'Utilisation de Google s'appliquent.